Neue Räume für die Kunst – Geförderte Ateliers im Werkhaus, Peuntgasse 7
Mit der Einrichtung städtisch geförderter Atelierräume im Werkhaus in der Peuntgasse 7 setzt die Stadt Nürnberg ein starkes Zeichen für die Förderung zeitgenössischer Kunst. In zentraler Lage, zwischen Künstlerhaus, Kunsthaus und Kunsthalle Nürnberg gelegen, stehen neue Räume zur Verfügung, die Künstlerinnen und Künstlern ab 1. November kostenfrei ein professionelles, inspirierendes Umfeld für ihr kreatives Schaffen bieten. Bewerbungsschluss ist der 30. September 2025.
Die vier unterschiedlich großen Ateliers verstehen sich nicht nur als Arbeitsorte, sondern auch als offene Plattformen für Austausch, Sichtbarkeit und gemeinsames Denken. Sie laden ein zur Vernetzung innerhalb der lebendigen Nürnberger Kulturlandschaft und stärken die Vielfalt und Qualität der lokalen Kunstszene nachhaltig.
Die Vergabe der Atelierräume für unterschiedliche Zielgruppen, von Absolventinnen und Absolventen, etablierten Künstlerinnen und Künstlern bis hin zu Kunstkollektiven erfolgt durch eine unabhängige fünfköpfige Fachjury unter Leitung der Kunsthalle Nürnberg. Als betreuende Institution, die bereits mit der Atelierförderung der Stadt Nürnberg beauftragt ist, sieht sie sich in enger Kooperation mit den geförderten Künstlerinnen und Künstlern.
Voraussetzungen für die Nutzung – Arbeitsschwerpunkt Nürnberg
Gefördert werden Künstlerinnen und Künstler, die ihren Arbeitsschwerpunkt in Nürnberg haben und ihre Tätigkeit hauptberuflich ausüben. Die Ausübung einer Nebentätigkeit von bis zu 20 Stunden wöchentlich in kunstnahen Berufen ist nicht hinderlich. Die professionelle künstlerische Tätigkeit ist durch eine abgeschlossene künstlerische Ausbildung an einer Akademie, Hochschule oder Fachhochschule oder im Einzelfall durch eine Ausstellungstätigkeit in anerkannten Kunstinstitutionen nachzuweisen. Die Arbeitsräume sind ausschließlich zur regelmäßigen künstlerischen Arbeit vorgesehen.
Die Nutzung ist auf drei Jahre befristet. Für die Ateliers 2, 3 und 4 besteht die Option, die Nutzung um zwei Jahre zu verlängern. Voraussetzung für eine Verlängerung ist die fristgerechte Einreichung eines schriftlichen Tätigkeitsberichts. Der Tätigkeitsbericht ist spätestens fünf Monate vor Ablauf der Mietdauer einzureichen. Dieser Bericht soll nachvollziehbar darlegen, in welcher Weise das Atelier in der bisherigen Laufzeit genutzt wurde und welche Entwicklungen in der eigenen künstlerischen Praxis während dieses Zeitraums stattgefunden haben. Der Tätigkeitsbericht dient als Grundlage für die Entscheidung über die Verlängerung und sollte sowohl inhaltlich als auch formal aussagekräftig und vollständig sein. Nach maximal 5 Jahren erfolgt eine Neuvergabe, eine weitere Verlängerung ist nicht vorgesehen.
Downloads
Atelierdetails und Zielgruppen
Atelier 1/1. OG
- Zwei Atelierräume (24 m² und 14 m²), Nadelfilzboden, eigenes WC mit Vorraum und Waschbecken
- Zielgruppe: Absolvent*innen der Akademie der Bildenden Künste Nürnberg aus dem aktuellen sowie den beiden vorangegangenen Abschlussjahrgängen
- Besonderheit: exklusive Vergabe an Absolvent*innen zur Förderung des künstlerischen Einstiegs
- Nutzungsdauer: 3 Jahre, keine Verlängerung vorgesehen
Atelier 2/2. OG
- Raum mit 14 m², Nadelfilzboden, Etagen-WC mit Vorraum und Waschbecken
- Zielgruppe: Künstler*innen im Bereich Sound-, Video-, Fotokunst oder digitale Medien
- Nutzungsdauer: 3 Jahre, Verlängerung um 2 Jahre möglich
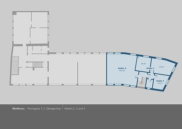
Atelier 3/2. OG
- Zwei Atelierräume (14 m² und 24 m²), Nadelfilzboden, Etagen-WC mit Vorraum und Waschbecken
- Zielgruppe: Ateliergemeinschaften, bestehend aus zwei Künstler*innen
- Besonderheit: Durchgangssituation zwischen den beiden Räumen
- Nutzungsdauer: 3 Jahre, Verlängerung um 2 Jahre möglich
Atelier 4/2. OG
- Zwei großzügige, ineinander übergehende, lichtdurchflutete Räume mit einer Gesamtgröße von 130 m², Estrichboden, eigenes WC mit Vorraum und Waschbecken im 1. OG
- Zielgruppe: Ateliergemeinschaften, bestehend aus mind. zwei Künstler*innen
- Besonderheit: Nur Bewerbungen von Ateliergemeinschaften werden berücksichtigt, um den Austausch von Ideen und die Entwicklung gemeinsamer Projekte zu fördern.
- Nutzungsdauer: 3 Jahre, Verlängerung um 2 Jahre möglich




